Обяви За нас Контакти
Продава КЪЩА
град Варна, м-т Ракитника
269 000 €
526 118.27 лв.

(1 671 €, 3 268.19 лв./m2)
Не се начислява ДДС
История на цената
Коригирана в 21:58 на 14 януари, 2026 год.
Обявата е посетена 945 пъти.
Площ:
161 m2
Двор:
388 m2
Етаж:
2
Строителство:
Тухла, Ще бъде въведен в експлоатация 2027 г.

Описание на имота:


Предлагаме на Вашето внимание възможността да изберете своята къща в стартиралия изграждането си затворен комплекс с осем еднотипни къщи в с.о.Ракитника, разположен на около 300м. от главния път и спирка на градски транспорт.
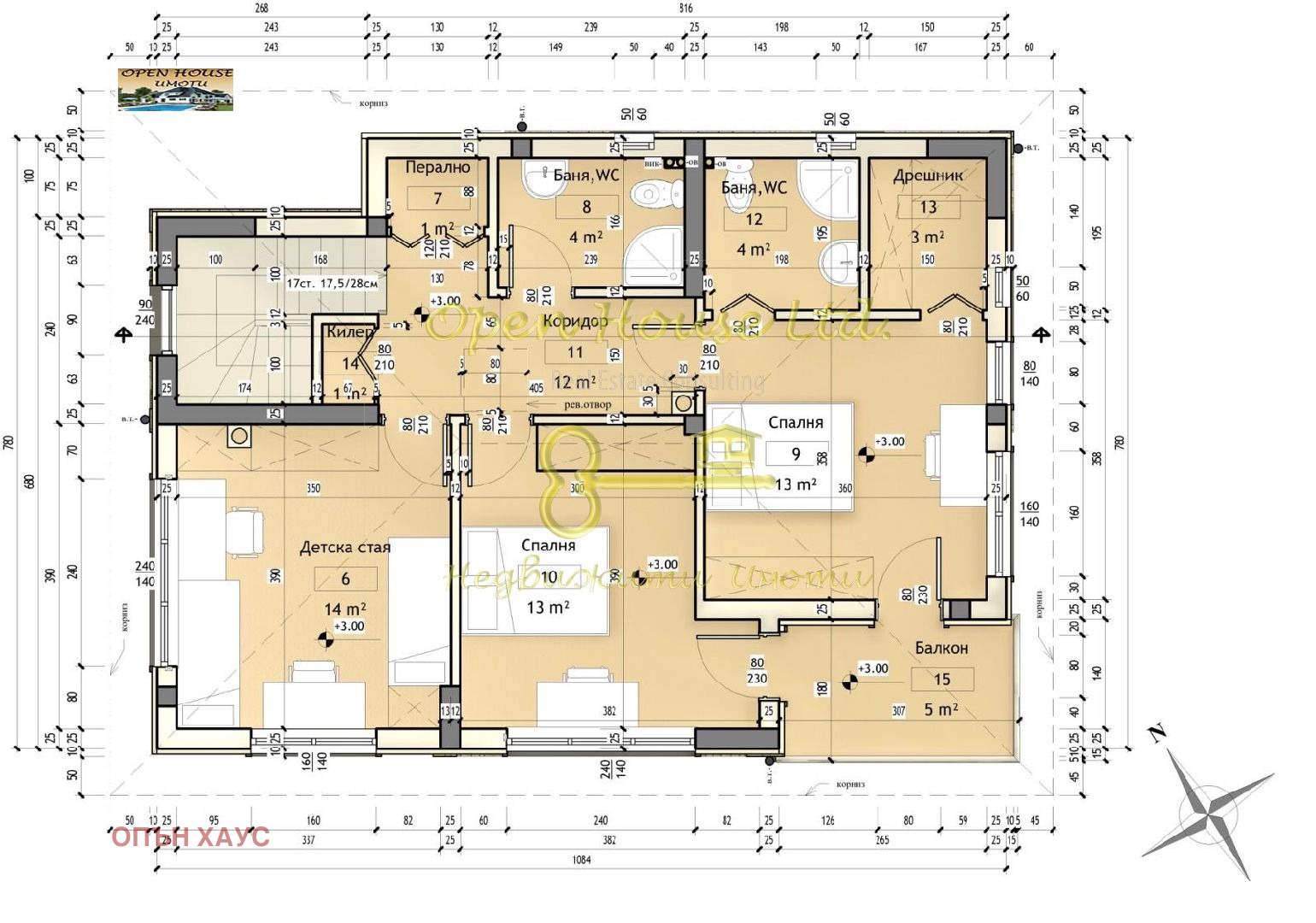
Разпределението на къщата е следното:
- първи етаж: антре, дневна, кабинет, баня-тоалет, килер.
- втори етаж: коридор, детска стая, две спални с общ балкон, едната от които с дрешник и баня-тоалет, перално, дрешник, баня-тоалет и килер.
Всяка къща ще е с обособен двор, с две паркоместа, като четири от дворовете ще са със самостоятелен вход от улицата, а останалите четири с общ портал.
Комплексът ще е без такса поддръжка.
Начало на строителството - 01.11.2025г.
Сградите ще бъдат издавани в степен на завършване - по БДС, с възможност за завършване при желание на клиента 'до ключ'.
Предлагат се гъвкави схеми на плащане, в зависимост от етапа на строителство.
За контакт: Жечка Христова - тел. 0888430914

Особености
Тухла
С паркинг
Контрол на достъпа
В затворен комплекс
За контакт:
0888430914
Брокер:
Жечка Христова
0879 012 606
Още оферти от брокера: Продава | Дава под наем | Купува | Наема
Агенция:
ОПЪН ХАУС
0888 430 914
ОПЪН ХАУС logo
Медал за прослужено време
В imot.bg от 2017 г.
openhouse.imot.bg
Адрес:
област Варна, гр. Варна, ул. Братя Миладинови 24, офис 35
http://openhouse.bg
ИЗПРАТИ ЗАПИТВАНЕ
ИЗПРАТИ ЗАПИТВАНЕТО

Продава КЪЩА
град Варна, м-т Ракитника
Обява: 1j175996136531178

269 000 €
526 118.27 лв.
История на цената
(1 671 €, 3 268.19 лв./m2)

Не се начислява ДДС
ЗАПАЗИ ОБЯВАТА

Местоположение: град Варна, м-т Ракитника

Допълнителни данни за имотите в района и сравнение с други райони

Покажи

Период

и 2 месеца

* Средните цени са определени чрез медианна стойност